民用物联网燃气表
产品概述
物联网智能燃气表是以膜式燃气表为计量基表,采用低功耗电路、专用的阀门和先进的表面贴装工艺精工制造。具备电池欠压报警、异常流量报警、NB无线通讯等功能,可用于天然气、液化石油气气质计量,是适应燃气管理现代化的最佳计量器具。
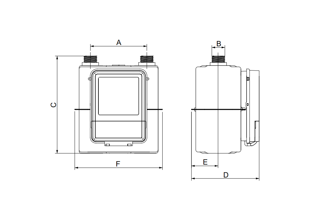
型号 | A | B | C | D | E | F |
G1.6 G2.5 G4 | 130 | M30*2 | 225 | 170 | 69 | 216 |

产品优势
用气安全
表计检测到流量异常或长时间未用气,可自动关阀、上报,时间保障用气安全
高阻燃性
表壳采用特殊阻燃材料,具有高阻燃性能,650℃不会发生起火现象,960℃起火10秒内自动熄灭,保障用气安全
智能计费
采用物联网技术支持阶梯气价、远程调价及远程缴费等功能,支持多种缴费方式
客户服务
通过分析表计上传数据,可有效了解用户用气情况,从而为客户提供更优质服务
表计监控
当表计识别到欠压、磁干扰、掉电时,会主动关闭阀门并上报表计状态,后台系统可远程监控到表计的异常情况,并及时解决
防护等级
表计采用独特设计,外壳防护等级可达IP65
功能亮点
异常流量
智能识别计量异常
同时关断阀门防逆流
防止表计反装
及计数器倒转结算方式
可灵活选择表端计费
或后台结算方式历史数据存储
可记录小时用量、日用量、
月用量其他功能
支持阶梯气价、远程抄表、远程阀控、异常状态主动报警、表计远程升级等功能
技术参数
规格型号 | G1.6 | G2.5 | G4 |
最大流量 | 2.5m³/h | 4m³/h | 6m³/h |
最小流量 | 0.016m³/h | 0.025m³/h | 0.04m³/h |
计量等级 | 1.5级 | ||
压力损失 | ≤250Pa | ||
最大工作压力 | 30KPa | ||
工作温度 | -10~+40℃ | ||
环境温度 | -20~+60℃ | ||
相对湿度 | ≤95%RH | ||
大气压力 | 86~106KPa | ||
阀门 | 内置电机阀 | ||
供电方式 | 碱电池(6V)/锂电池(3.6V) | ||
电池使用寿命 | ≥12个月/≥10年 | ||
防护等级 | IP65 | ||
防爆等级 | Ex ib ⅡB T3 Gb | ||
通信方式 | NB-IoT/LoRa/红外 | ||

